Teraz jest 29 lis 2025, o 10:53
Strona główna forum » Yamaha R6 » Warsztat
|
Strona 1 z 1
|
[ Posty: 6 ] |
|
| Autor |
Wiadomość |
|
Paul
|
Tytuł: R6 RJ11 2007 - Wtyczka do ECU Napisane: 16 cze 2014, o 22:28 |
|
 |
| świeżak |
Dołączył(a): 13 cze 2014, o 21:41 Posty: 6
Sprzęt: R6 RJ11
Imie: Paweł
Lokalizacja: Włocławek
|
|
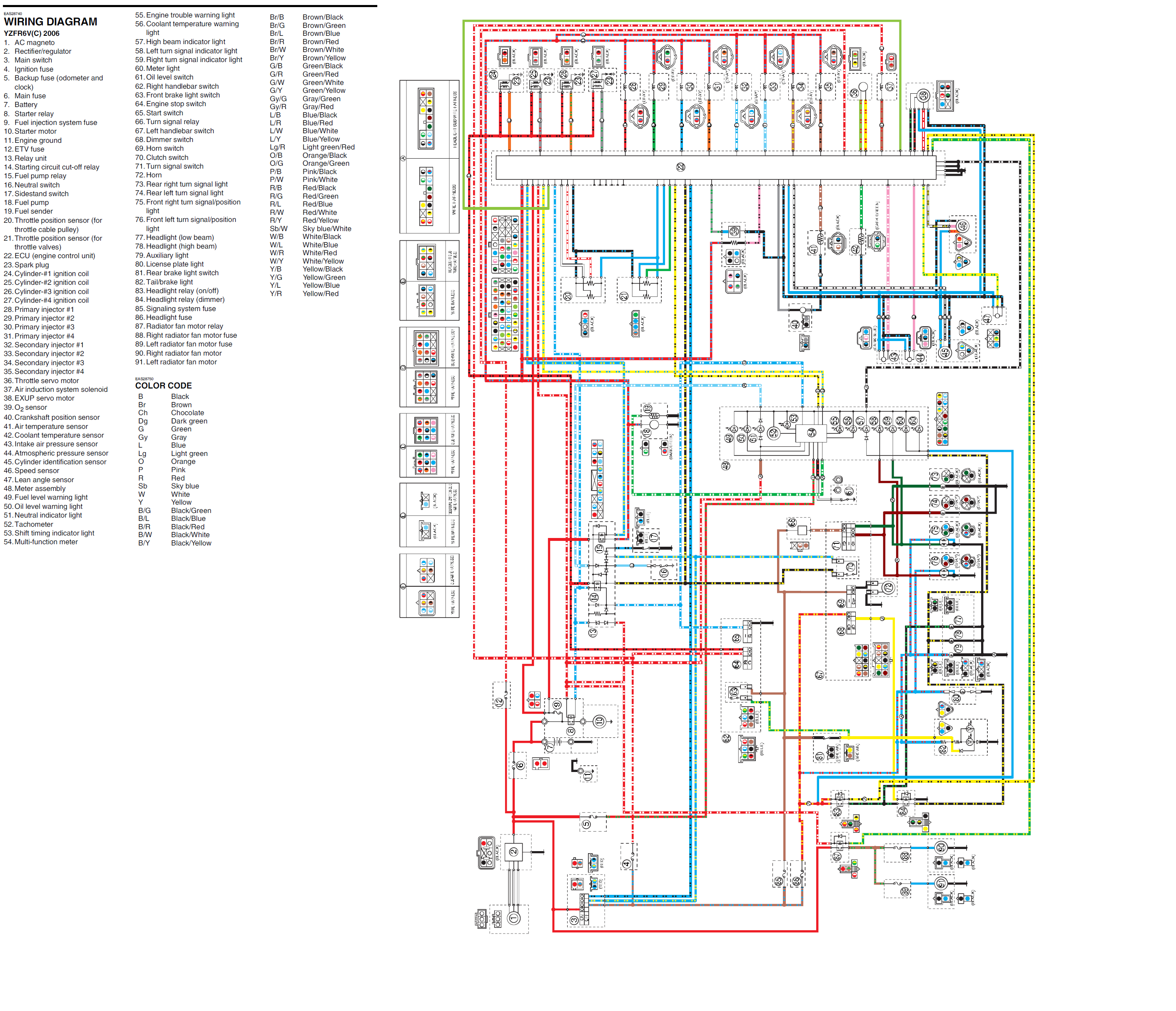
Witam wszystkich. Mam problem ze swoja r6 RJ11 2007r. Pewien Pan niedawno wymusił mi pierwszeństwo. Podczas wypadku strażacy bądź jakis miły człowiek odłączył mi akumulator. Okazało się, że przed kupnem musiało być coś kombinowane ponieważ jedna z wtyczek od komputera ma przewód zakończony oczkiem. Nie wiem teraz gdzie był on wcześniej podłączony. Czy ktokolwiek jest w stanie określić czy przewód powinienem podłączyć do (+) czy (-) oraz za co odpowiada ponieważ nie chciałbym spalić komputera.
Pozdrawiam wszystkich zainteresowanych i z góry dziękuję za pomoc.
| Załączniki: |
Komentarz: Schemat przewodzikow.

1.png [ 870.88 KiB | Przeglądane 1321 razy ]
|
Komentarz: R6 RJ11 2007r

ECU Problem.jpg [ 716.32 KiB | Przeglądane 1337 razy ]
|
|
|
 |
|
|
Iskra
|
Tytuł: Re: R6 RJ11 2007 - Wtyczka do ECU Napisane: 21 cze 2014, o 15:12 |
|
 |
| mistrz prostej |
 |
Dołączył(a): 24 cze 2012, o 11:43 Posty: 478
Sprzęt: r6
Imie: Iskra
Lokalizacja: Lipno
|
|
Cześć kolego jak chcesz mogę do Ciebie podlecieć to zobaczymy jak to u mnie jest i wtedy sobie podłączysz w odpowiedni sposób. jestem z lipna to mam blisko pozdrawia
_________________ www.chemskor.pl
|
|
 |
|
|
Paul
|
Tytuł: Re: R6 RJ11 2007 - Wtyczka do ECU Napisane: 24 cze 2014, o 08:29 |
|
 |
| świeżak |
Dołączył(a): 13 cze 2014, o 21:41 Posty: 6
Sprzęt: R6 RJ11
Imie: Paweł
Lokalizacja: Włocławek
|
|
W oryginale niestety ten kabel chyba normalnie jest podłączony..
|
|
 |
|
|
OXA
|
Tytuł: Re: R6 RJ11 2007 - Wtyczka do ECU Napisane: 24 cze 2014, o 09:18 |
|
 |
| kursant |
 |
Dołączył(a): 10 mar 2011, o 18:40 Posty: 260
Sprzęt: f16
Imie: oxa
Lokalizacja: śląsk
|
|
Ja mam to oczko do minusa podpięte
|
|
 |
|
|
Paul
|
Tytuł: Re: R6 RJ11 2007 - Wtyczka do ECU Napisane: 25 cze 2014, o 16:25 |
|
 |
| świeżak |
Dołączył(a): 13 cze 2014, o 21:41 Posty: 6
Sprzęt: R6 RJ11
Imie: Paweł
Lokalizacja: Włocławek
|
kot3cz3q napisał(a): Ja mam to oczko do minusa podpięte To w oryginale juz tak jest? Fajnie ze sprawdzilas u siebie. Dziekuje  .
|
|
 |
|
|
Paul
|
Tytuł: Re: R6 RJ11 2007 - Wtyczka do ECU Napisane: 18 lip 2014, o 12:20 |
|
 |
| świeżak |
Dołączył(a): 13 cze 2014, o 21:41 Posty: 6
Sprzęt: R6 RJ11
Imie: Paweł
Lokalizacja: Włocławek
|
|
Oczko podlacza sie do "-" jak napisala kolezanka wyzej. Temat do zamkniecia. Dziekuje pozdrawiam.
|
|
 |
|
|
Strona 1 z 1
|
[ Posty: 6 ] |
|
Strona główna forum » Yamaha R6 » Warsztat
Kto przegląda forum
Użytkownicy przeglądający ten dział: Brak zidentyfikowanych użytkowników i 1 gość
|
Nie możesz rozpoczynać nowych wątków Nie możesz odpowiadać w wątkach Nie możesz edytować swoich postów Nie możesz usuwać swoich postów Nie możesz dodawać załączników
|